Introducción
7 de julio de 1931
«sacar del viejo convento esta enorme masa de madera, en los difíciles momentos actuales, requirió un sinfín de habilidad y paciencia, ya que fue preciso enmascarar cada carga de camión. El techo en su totalidad está ahora en Madrid, guardado en mi almacén, por lo cual no hay peligro de una intervención gubernamental«.
Arthur Byne
La integración del Madre de Dios convertirá San Pedro Mártir en un gran centro de Humanidades
Toledo 04/03/2001
Sobre las características del edificio, aunque carezca de elementos artísticos muy llamativos, como el impresionante patio de Covarrubias que tiene San Pedro, sí tiene, en opinión del arquitecto Diego Peris, «una estructura de organización que es muy típica de la ciudad de Toledo, de volcarse hacia el interior, con patios… y con esos grandes muros cerrados hacia el aspecto exterior; es un elemento importante a mantener y, sobre todo, ahora que va a formar una unidad con San Pedro».
ABC Toledo
La puerta mudéjar hallada en el Madre de Dios se descubrirá en primavera
Toledo 27/12/2003
En primavera, cuando se inauguren las obras del convento Madre de Dios, se descubrirá la puerta mudéjar hallada en las obras de ampliación de San Pedro Mártir. Una auténtica joya arquitectónica que se abrirá a los ojos de todos los toledanos porque servirá de acceso a la Universidad
ABC Toledo
Convento de la Madre de Dios de Toledo
Se encuentra situado en la calle Alfonso XII
Tanto por su longitud como por haber tenido varios edificios destacados, ha sido conocida por varios nombres a la vez, aplicado cada uno a un tramo distinto. La parte inicial, desde la plaza Padre Juan de Mariana, se llamó durante siglos “calle de la Cárcel Real”, ya que en ella estaba, al menos desde 1560 un edificio propiedad del Ayuntamiento y destinado a prisión, ocupando parte del solar que hoy es de la Residencia de Jesuitas desde 1925.
Ubicado cerca de la plaza Padre Juan de Mariana. Fue la Casa Principal de los Silva en el siglo XIV, de la que se conservaban los muros y el suntuoso patio. Desde finales del siglo XV hasta mediados del XVII fue el Convento Madre de Dios, de la orden de dominicos, fundado por Leonor y María de Silva, hijas del conde de Cifuentes. A finales del XVII empieza un deterioro que continuará hasta el XIX.
Albergó también el cuartel de la Guardia Civil.
En 1844 se la llamaba “Cárcel Nacional”, a consecuencia de los cambios políticos, y en 1851 “Cárcel Vieja”, por trasladarse a Gilitos el establecimiento. En el Nomenclátor de 1864 se la denominaba “calle de San Juan Bautista”, nombre que debió usarse rara vez.
Reparada y ampliada la cárcel en 1575, por orden del activo corregidor Gutiérrez Tello, se dividía en dos sectores: uno “seguridad de los buenos y castigo de los malos” para delincuentes comunes, y otro, “cárcel para gente honrada”, frase paradójica hoy, que entendemos por honra una cualidad distinta que entonces se atribuía para los ciudadanos de linaje distinguido. (Fuente: Historia de las Calles de Toledo)
A finales de los años 90, la Universidad adquiere el inmueble a una congregación de dominicas con el objetivo de ampliar sus dependencias. Después de la rehabilitación del antiguo Convento de Madre de Dios, llevada a cabo entre 2002 y 2005, la Facultad de Ciencias Jurídicas y Sociales de Toledo cuenta con cuatro nuevos aularios y seminarios, varios despachos adicionales, un aula magna, doscientos puestos de lectura añadidos en la biblioteca y un nuevo espacio para cafetería y comedor universitario.
El convento, de la orden dominica, crece desde finales del XV hasta mediados del XVII, dando como resultado el típico complejo conventual articulado alrededor de patios.
Durante las obras de rehabilitación del conjunto conventual, se llevaron a cabo diversas actuaciones arqueológicas, especialmente en la zona ocupada con anterioridad por el huerto de las monjas, donde se hallaron restos arqueológicos de distintas épocas (romana, medieval, moderna).
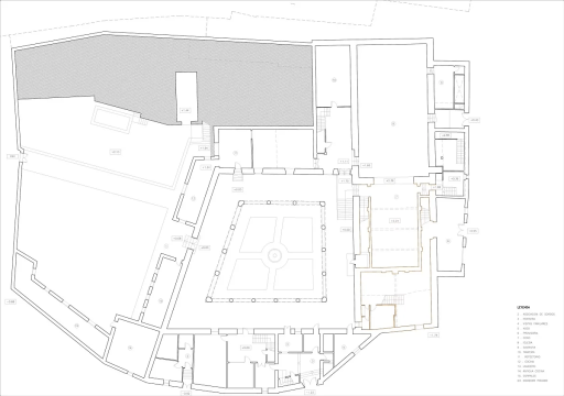
Es en esta fase de la intervención cuando se produce el importante descubrimiento de una portada mudéjar del siglo xiv, orientada a la plaza del Padre Juan de Mariana, que debió de formar parte de un edificio civil, y desarrollada en tres cuerpos: el inferior, formado por la puerta adintelada, sobre la que se encuentra un dovelaje en el que alternan hiladas de ladrillos con tiras de azulejos blancos, verdes y negros, todo ello enmarcado en una cenefa, también en azulejería, en la que aparecen diversos escudos nobiliarios; el cuerpo intermedio, compuesto por una serie de arquillos ciegos polilobulados, que se entrecruzan; y el cuerpo superior, en el que se encuentra un ventanal compuesto por tres arcos, también polilobulados, sostenidos por columnas de mármol.
Portada
Consta de un vano de entrada que se cubre con un dintel de madera ricamente labrado, seguido de azulejería polícroma, un juego de arquillos polibulados ciegos, tres ventanas formadas por arcos polilobulados y un tajaroz cerrando la composición. La fachada está flanqueada por finos pilares que la recorren verticalmente a modo de alfiz.

Claustro/patio Interior
En el interior del convento, en la zona ocupada por el huerto de las monjas aparecen en la actualidad un claustro y una nueva construcción para la ampliación de la biblioteca de San Pedro Mártir y sus espacios administrativos.
El claustro, convertido tras varias reformas en trapezoidal, y que era en origen de una sola altura, tiene en la actualidad dos plantas. Destacan la decoración epigráfica que recorre la parte superior del muro del claustro bajo y las vigas de madera sobre ménsulas de rollos. En el claustro alto, al que se abren diversas aulas y despachos, aparecen unos pies derechos de madera en los paños intermedios de cada panda, entre los grandes ventanales acristalados incorporados en la última reforma. Por último hay que destacar la presencia de pilares ochavados en los ángulos de la galería alta del claustro.

El claustro, convertido tras varias reformas en trapezoidal, y que era en origen de una sola altura, tiene en la actualidad dos plantas. En la panda este del claustro está situada la iglesia, hoy convertida en aula magna de la Universidad.
La definitiva rehabilitación del convento se produce tras su adquisición, por parte de la Universidad de Castilla-La Mancha, para complemento del centro universitario de San Pedro Mártir.
- Cobertura de las deficiencias actuales de la Facultad de Ciencias Jurídicas y Sociales ubicada en San Pedro Mártir y que consisten fundamentalmente en la falta de aulas grandes, seminarios complementarios y despachos.
- Ampliación de la actual Biblioteca de Campus, necesitada actualmente de un incremento en almacenaje, sala de lectura y dependencias administrativas.
- Creación de un comedor universitario con capacidad de servicio no solamente para San Pedro Mártir sino de apoyo a los restantes centros del campus del casco histórico.
- Espacios adecuados para la ubicación de las asociaciones estudiantiles .
Pared
Una gran parte de los edificios de la ciudad histórica de Toledo levantan sus muros, estructuras y armaduras conforme a una serie de normas, heredadas en el tiempo, que se agrupan en lo que comúnmente llamamos “el buen hacer constructivo”. Normas forjadas por la fuerza de la experiencia, las disposiciones de los gremios y el sencillo respeto a la tradición. Buen hacer constructivo que se muestra, a modo de prueba forense, en esos alzados arquitectónicos que el paso del tiempo intenta tenazmente domar.
En la Calle Alfonso XII, sobre el paredón exterior sur del antiguo Convento de Madre de Dios, asoma rasante, como un lomo de ballena, un viejo arco de ladrillo mutilado parcialmente. Su “lesión” constructiva se debe a la apertura, en una fase posterior al arco, de una entrada al convento. El arco de descarga parece proteger, bajo su comba, un antiguo paso subterráneo que cruza la calle. Conocemos de su existencia al estar documentada la cesión en 1510, por parte del Cardenal Cisneros, para ampliación del convento, de una casa al otro lado de la calle Alfonso XII, en la Travesía de Jesús y María. Esta galería, que desconocemos si sigue hoy en día bajo la calle, fue autorizada por el Ayuntamiento en 1511 y permitía el paso de las monjas de un edificio a otro sin quebrantar la clausura
WILLIAM RANDOLPH HEARST: EL CIUDADANO KANE EN TOLEDO EN 1934
Hoy en día el inmenso patrimonio acaparado por Hearst se encuentra bastante disperso entre los edificios que le pertenecieron y los principales museos de Estados Unidos. Un reciente e imprescindible libro de José Miguel Merino de Cáceres y María José Martínez Ruiz –La Destrucción del Patrimonio Artístico Español. W.R. Hearst: el Gran Acaparador, Ediciones Cátedra, 2012- arroja valiosos datos sobre las piezas expoliadas por Hearst. He hecho a partir de él una lista preliminar de elementos sustraídos de Toledo y que Hearst adquirió.
El grupo más numeroso de elementos es el de artesonados y techos mudéjares, destacando de entre todos el perteneciente al Convento de Madre de Dios.
En la ficha rellenada por el propio Arthur Byne decía de él que era «el techo más importante en España». Aseveraba Byne a Hearst en una carta de 7 de julio de 1931 que «sacar del viejo convento esta enorme masa de madera, en los difíciles momentos actuales, requirió un sinfín de habilidad y paciencia, ya que fue preciso enmascarar cada carga de camión.
El techo en su totalidad está ahora en Madrid, guardado en mi almacén, por lo cual no hay peligro de una intervención gubernamental». La compra la formalizó Hearst a Byne el 4 de octubre de 1931 por 22.000 dólares y el cargamento salió hacia San Francisco el 28 de enero de 1932. Es posible que fuese empleado en la denominada «New Wing» del castillo de San Simeón.
El artesonado cubría el refectorio del famoso Convento de la Madre de Dios en Toledo, fundado por los Reyes Católicos en el siglo XV y cuyos escudos están dibujados en la forma de las conchas bajo las vigas decía Byne. Todo el techo está decorado en color y además los ménsulas triples están tratadas en oro. Todo el conjunto estaba en perfectas condiciones. El artesonado decía la carta medía 103 pies de largo y 19 pies y 6 pulgadas de ancho (es decir 31,40 x 5,92 metros). El conjunto tenía 20 vigas mayores y 19 vanos organizando cuarteles en forma de escudos.
El 4 de octubre de 1931 se compraba el artesonado por 22.000 dólares confirmando la compra por cable el 21 de noviembre. El artesonado es enviado directamente a San Francisco el 28 de enero de 1932 en once vagones. El coste del envío fue de 79.600 pesetas. Una carta del 5 de mayo de 1932 de Julia Morgan dirigida a Mr. Hearst le hablaba de la dificultad de utilizar SOVEREGNCEIL en una habitación de 40 pies probablemente en “The New Wing” aunque se desconoce el exacto emplazamiento de este techo.
Lo cierto es que los artesonados de este convento eran famosos y ya habían sido fotografiados en el siglo XIX
Web de referencia
Convento de la Madre de Dios (Toledo) – Wikipedia, la enciclopedia libre
Arcos sin carga – Consorcio de la Ciudad de Toledo (consorciotoledo.com)
WILLIAM RANDOLPH HEARST: EL CIUDADANO KANE EN TOLEDO EN 1934
Hearst, el gran acaparador en Madre de Dios [Diego Peris Sánchez] – hombre de palo















Debe estar conectado para enviar un comentario.